Техническое описание противопожарных дверей
Выбирая двери, определитесь со способом ее открывания. Левая или правая дверь — важно для удобства ее дальнейшей эксплуатации.

Также важно понимать, какой способ монтажа приемлем для вашего варианта. Ведь это влияет на тип конструкции каркаса будущей двери и комплект необходимого крепежа.
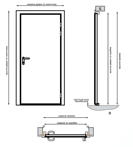
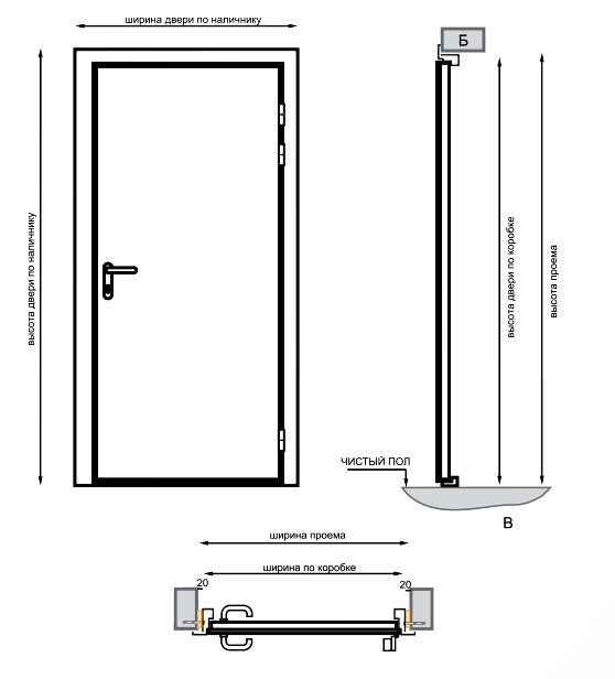
Схемы монтажа противопожарной двери
Вариант №1. Дверь с наличником открывание наружу. Установка и вид с наружной стороны
Вариант №3. Дверь с наличником открывание во внутрь. Установка и вид с наружной стороны
| Вариант №2. Дверь без наличника открывание наружу. Установка внутрь проема. Вид с наружной стороны
Вариант №4. Дверь без наличника открывание во внутрь. Установка и вид с наружной стороны
|
Варианты конструкций дверей
Выбирайте конструкцию под ширину вашего проема. Однопольные двери или двупольные двери, с активными или нерабочими стоврками можно изготовить под ваш проем индивидуально.
Базовая комплектация противопожарных дверей
1) Каплевидная петля на опорном подшипнике, диаметр 22 мм.
2) Терморасширяющаяся противопожарная лента 15х1,5 мм.
3) Резиновый уплотнитель E.
4) Резиновый уплотнитель D.
5) Базальтовая каменная плита isovol 150-200 (противопожарная).
6) Противопожарный замок Door Lock.
7) Карман под замок.
8) Дверная коробка (цельногнутая стальная).
9) Дверное полотно (цельногнутое стальное).
10) Лист металла 1,4 мм холоднокатанный (порошковый окрас)
Технические характеристики противопожарной двери EI-60
Дверь металлическая противопожарная Еі 60 однопольная / двупольная из стали 1,2 мм (1,4 мм), с порогом / без порога, коробка угловая с наличником по 50 мм с 3-х сторон / торцевая без наличника, наполнение базальтовая плита 60 мм, петли капли по 2 шт. на полотно. Замок противопожарный, ручка на планке черная, цилиндр кл/ кл, уплотнение по периметру (Е), термолента. RAL стандарт шагрень, открывание наружу, левая/правая.
Технические характеристики дымогазонепроницаемой двери EIS-60
Дверь металлическая противопожарная дым/газ Eis 60 однопольная / двупольная из стали 1,2 мм (1,4 мм), с порогом, коробка угловая с наличником по 50 мм с 3-х сторон / торцевая без наличника, наполнение базальтовая плита 60 мм, петли капли по 2 шт. на полотно. Замок противопожарный, ручка на планке черная, цилиндр кл/кл, уплотнение по периметру (Е+Д), термолента. RAL стандарт шагрень, открывание наружу, левая/ правая.
Варианты крепления двери в проем

Варианты исполнения порогов дверей
Задайте их нашему менеджеру +7 (495) 749-93-88
Или закажите бесплатную консультацию
Наши менеджеры рады обслужить вас
в рабочие дни с 9:00 до 18:00 по московскому времени














